En Alquiler
USD1.935
Galpón
ALQUILO GALPON C/OFICINAS A ESTRENAR EN ROLDAN S/RUTA A012 - 499 m2
Código: 187700

RN A012, Roldán, Santa Fe, Argentina, Roldan, Santa Fe, Argentina.

Compartir esta Propiedad

Descripción de la Propiedad

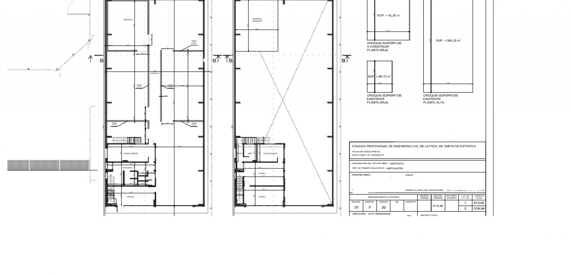
Se trata de un moderno galpón con oficinas para uso industrial, depósito o logística, diseñada con altos estándares para el tránsito pesado y la actividad empresarial, siendo una propiedad a estrenar.
El terreno posee un frente de 28,00 metros lineales sobre la A012, en su lateral sur y norte 79,82 metros. SUP. DE TERRENO DE 2.234 M2 Y DE GALPÓN 499 M2.
Se pueden agregar 3 lotes que están en el contrafrente haciendo una sup. total de : 2739m2

CARACTERÍSTICAS:
Estructura y Altura: es una nave de diseño moderno, con una altura libre de 8,10 metros para permitir el acopio vertical y el movimiento de máquinas, el frente de 12,33 metros con un portón con persianas automáticas de doble hoja y altura.
La estructura es de columnas de hierro con techo a dos aguas, paredes de bloques de hormigón y chapas, el piso es de hormigón armado para el alto tránsito.
En planta baja hay oficinas, baños, cocina y vestuarios.
En la planta alta: oficinas, sala de reuniones y baños se puede acceder desde una escalera desde la nave y desde las oficinas de Planta baja.
La nave cuenta con alarma monitoreada, luz trifásica, conexión a A/A. Portón de ingreso automático doble hoja, alambrado perimetral y cuenta con un lote lindero de 14,00 x 43,82 y otro de la misma medida en el contrafrente.

LOS TABIQUES DIVISORIOS QUE POSEE LA NAVE PUEDE SACAR


Mas detalles
  • Alarma
  • Garage
  • Portones eléctricos
  • Luminoso
  • Patio
  • Apto profesional
  • Comedor
  • Asfalto
  • Cloacas
  • Electricidad
  • Tendido Eléctrico
  • Entrada para Auto
  • Internet / Wifi
  • A ESTRENAR
Ver video de la propiedad
Ubicación